Prodej

Byt 4+1, ul. Mariánskolázeňská

13237500

Karlovarský kraj, Karlovy Vary, Mariánskolázeňská

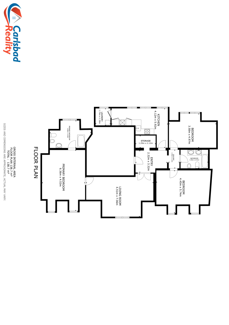
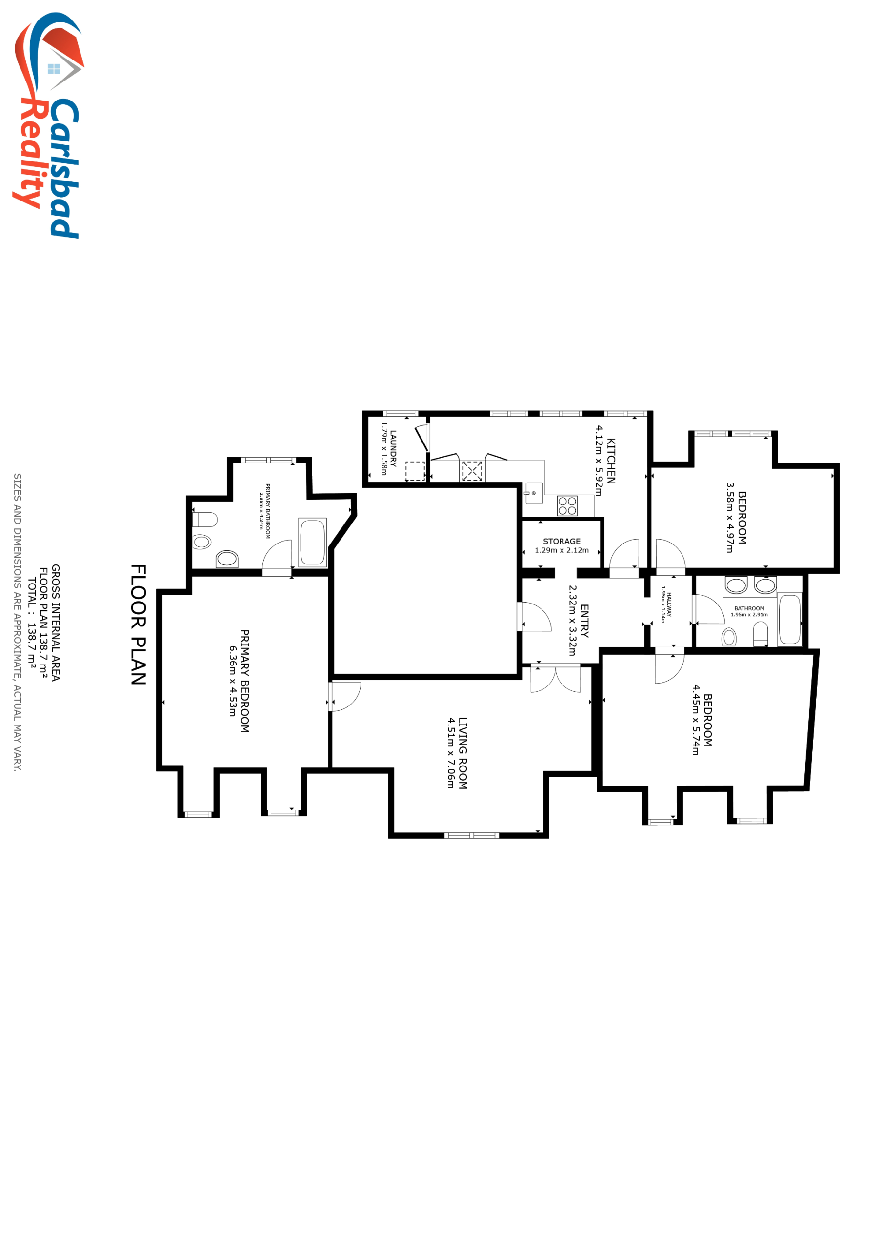
Carlsbad Reality exkluzivně nabízí k prodeji luxusní apartmán o dispozici 4+1, situovaný v 5. patře (jediný apartmán na celém patře) cihlové budovy po kompletní rekonstrukci, vybavené moderním výtahem. Nemovitost se nachází ve vyhledávané lokalitě lázeňského centra Karlových Varů, na ulici Mariánskolázeňská, v těsné blízkosti Grand Hotelu Pupp a Císařských Lázní, s minerálními prameny v docházkové vzdálenosti. Celková plocha apartmánu činí 130,7 m². Byt je po kompletní rekonstrukci a v perfektním stavu. Vytápění je zajištěno dálkovým topením. Apartmán se prodává částečně zařízený nábytkem luxusních značek: Edwin Loxley (UK), Theodore Alexander (USA), And So To Bed (UK), Vaughan (UK), Romo (UK). Byt zahrnuje předsíň se šatnou, prostorný obývací pokoj, kuchyň s přilehlou spíží, tři ložnice (jedna s vlastní koupelnou), další koupelnu s vanou, bidetem a WC. Výška stropů činí 2,70 m. V okolí je veškerá občanská vybavenost – obchody, restaurace, školy, autobusová zastávka a další. Apartmán je velmi světlý: obývací pokoj a dvě ložnice jsou orientovány na jihozápad, kuchyň a třetí ložnice na severovýchod. Budova z roku 1919 prošla důkladnou rekonstrukcí, včetně instalace moderního výtahu. Vřele doporučujeme prohlídku tohoto elegantního apartmánu v srdci Karlových Varů. Měsíční poplatky do fondu oprav/společenství vlastníků činí 7 200 Kč.

Cena činí: 529.500 EURO

Číslo nabídky
1721
Typ budovy
Cihlová
Umístění podlaží
6 / 6
Umístění
Centrum obce
Doprava
Silnice, MHD
Rozvod topení
Ústřední dálkové
  • Číslo nabídky
    1721
  • Vlastnictví
    Osobní
  • Cena
    13237500
  • Typ budovy
    Cihlová
  • Stav budovy
    Po rekonstrukci
  • Počet podlaží
    6
  • Umístění podlaží
    6
  • Výtah
  • Třída energetické náročnosti
    G - Mimořádně nehospodárná
  • Zdroj vody
    Dálkový vodovod
  • Typ odpadu
    Veřejná kanalizace
  • Rozvod topení
    Ústřední dálkové
  • Příjezdová komunikace
    Asfaltová
  • Doprava
    Silnice, MHD
  • Užitná plocha
    130 m2
  • Zařízeno
    Částečně


Thank you! Your submission has been received!
Oops! Something went wrong while submitting the form.